Idag åkte jag till Woodys och skulle betala golvet till ovanvåningen, välja längder och komma överens om utkörningstid... trodde jag...
När jag kom dit fick jag höra att golvet redan var utkört! I datorn stod dessutom fel leveransadress samt fel telefonnummer! Oj snacka om att adrenalinet rusar då ;-)
Ringde chauffören direkt och fick tag på honom när han var 2 min från den felaktiga leveransadressen, gav honom den rätta adressen, ringde svärfar som tur nog var hemma och som kunde ta emot sändningen...
Blev dessutom bjuden på fraktavgiften av Woodys som plåster på såret för missuppfattningen.
Ibland har man som sagt mer tur än skicklighet!
(Och tack kära svärfar för dagens insats!)
tisdag 31 maj 2011
onsdag 25 maj 2011
Byggsamråd
Igår vad det dags för byggsamråd. Jag var själv iväg på en energibesiktning på underbara Kalmar slott så Andreas fick ta mötet själv (ned vår KA så klart).
Det mesta gick bra, kontrollplanen skulle kompletteras med några småpunkter som inte var några problem. Det "stora" problemet var att kommunen tyckte att det skulle vara 4,5 m mellan förrådet och huset, för att vi skulle klara brandkraven utan att behöva ha brandsäkra fönster. Vi hade 4 m, ett mått som vi trodde gällde.
Vi ville vi undvika brandsäkra fönster då det är en kostsam historia. Vi kunde inte hellre flytta förrådet då vi i så fall kom för nära granntomten.
Så vi (eller Andreas rättare sagt, då jag somnade vid barnnattningen igår ;-) ) lusläste BBRn igår som visade sig kräva minst 4 m, precis som vi trodde. Så efter lite snack med diverse kunniga på jobbet idag och lite hänvisningar till BBRn så fick Andreas kommunen att ge med sig idag. ...
Så underbart det känns när ett problem blir löst utan att tära på den hårt ansträngda budgeten. ;-)
Så nu skall vi bara få de att skriva på kontrollplanen, så kan bygget sätta igång.
Det mesta gick bra, kontrollplanen skulle kompletteras med några småpunkter som inte var några problem. Det "stora" problemet var att kommunen tyckte att det skulle vara 4,5 m mellan förrådet och huset, för att vi skulle klara brandkraven utan att behöva ha brandsäkra fönster. Vi hade 4 m, ett mått som vi trodde gällde.
Vi ville vi undvika brandsäkra fönster då det är en kostsam historia. Vi kunde inte hellre flytta förrådet då vi i så fall kom för nära granntomten.
Så vi (eller Andreas rättare sagt, då jag somnade vid barnnattningen igår ;-) ) lusläste BBRn igår som visade sig kräva minst 4 m, precis som vi trodde. Så efter lite snack med diverse kunniga på jobbet idag och lite hänvisningar till BBRn så fick Andreas kommunen att ge med sig idag. ...
Så underbart det känns när ett problem blir löst utan att tära på den hårt ansträngda budgeten. ;-)
Så nu skall vi bara få de att skriva på kontrollplanen, så kan bygget sätta igång.
måndag 23 maj 2011
Kontraktskrivning
Idag så skrev vi på kontraktet med vår generalentreprenör. Inflyttningsdatum sattes till den 18 november.
Det känns så skönt att få ett datum att räkna ner till. Det är byggstart om två veckor så snart händer det något även på vår tomt ;-)
Nu måste vi lämna underlag till entreprenören för att få prisförslag på grundläggningen av carport/förråd. Vi vill bygga carporten/förrådet under semestern och det blir betydligt enklare att hinna med om grunden redan är klar :-) Vi har varit inne på att plattlägga carportsdelen och gjuta grunden till förrådet. Entreprenören tyckte dock att vi skulle gjuta hela plattan. Vi får nog fundera på detta en stund...
Först skall vi bara avverka byggsamrådet imorgon...
Det känns så skönt att få ett datum att räkna ner till. Det är byggstart om två veckor så snart händer det något även på vår tomt ;-)
Nu måste vi lämna underlag till entreprenören för att få prisförslag på grundläggningen av carport/förråd. Vi vill bygga carporten/förrådet under semestern och det blir betydligt enklare att hinna med om grunden redan är klar :-) Vi har varit inne på att plattlägga carportsdelen och gjuta grunden till förrådet. Entreprenören tyckte dock att vi skulle gjuta hela plattan. Vi får nog fundera på detta en stund...
Först skall vi bara avverka byggsamrådet imorgon...
fredag 20 maj 2011
Tapeter till kök/matplats
Har funderat ett tag nu på om vi skall tapetsera köket för att få det lite mer ombonat.
Här är några av de mönstrade tapeterna som jag gillar:
Frågan är dock om det blir för mycket med så mycket mönster i ett så pass stort rum?
Skall man vara lite "feg" och köra fondvägg?
Eller skall man köra på något enklare, som någon av de här snygga randiga?
Så många val.... så mycket beslutsångest ;-)
Här är några av de mönstrade tapeterna som jag gillar:
Frågan är dock om det blir för mycket med så mycket mönster i ett så pass stort rum?
Skall man vara lite "feg" och köra fondvägg?
Eller skall man köra på något enklare, som någon av de här snygga randiga?
Så många val.... så mycket beslutsångest ;-)
torsdag 19 maj 2011
Äntligen lite action
Det har länge stått stilla och det har inte hänt något på husfronten.
Nu har det äntligen lossnat och vi har har fått handlingar från A-hus ang tomtköpet och entreprenören har hört av sig för att boka tid för kontraktskrivning.
Den som väntar på något gott....
Så nästa blir det lite action, vi skall skriva kontrakt med entreprenören på måndag och ha byggsamrådsmöte på tisdag!
Vi bad entreprenören maila oss kontraktet innan helgen så vi hinner granska det innan mötet på måndag...
Så nu är det bara att ta fram glasögonen till helgen och försöka tyda allt det finstilta ;-)
Nu har det äntligen lossnat och vi har har fått handlingar från A-hus ang tomtköpet och entreprenören har hört av sig för att boka tid för kontraktskrivning.
Den som väntar på något gott....
Så nästa blir det lite action, vi skall skriva kontrakt med entreprenören på måndag och ha byggsamrådsmöte på tisdag!
Vi bad entreprenören maila oss kontraktet innan helgen så vi hinner granska det innan mötet på måndag...
Så nu är det bara att ta fram glasögonen till helgen och försöka tyda allt det finstilta ;-)
söndag 15 maj 2011
Golvet inhandlat
Idag så åkte jag tillbaka till Woodys och beställde golvet (denna gång utan barn i släptåg ;-)).
Det kändes så skönt att faktiskt göra något konkret i byggprocessen. Nu är det mest en massa väntan och vi klättrar lite på väggarna här hemma....
Massivt granplankgolv blev det, vitlutat och vaxat till kanonpriset på 199 kr/kvm. Vi är supernöjda med vårt köp och hoppas nu bara på att entreprenören inte vill ha alltför mycket i tillägg för merjobbet det innebär att skruva ett massivt golv istället för att lägga ett parkettgolv.
Har ni någon av er läsare erfarenhet av detta så skicka jättegärna in en kommentar...
Det kändes så skönt att faktiskt göra något konkret i byggprocessen. Nu är det mest en massa väntan och vi klättrar lite på väggarna här hemma....
Massivt granplankgolv blev det, vitlutat och vaxat till kanonpriset på 199 kr/kvm. Vi är supernöjda med vårt köp och hoppas nu bara på att entreprenören inte vill ha alltför mycket i tillägg för merjobbet det innebär att skruva ett massivt golv istället för att lägga ett parkettgolv.
Har ni någon av er läsare erfarenhet av detta så skicka jättegärna in en kommentar...
lördag 14 maj 2011
Eget inköp av golv?
Woodys i Ronneby öppnade idag ock hade en massa öppningserbjudande. De hade halva priset på ett Siljans golv vi var intresserade av så vi gav oss av med barnen i släptåg för att titta på golvet.
Vi gillade golvet (granplank, vitlutad och borstad) och funderar nu på att köpa den imorgon då priset gäller bara denna helgen.
Golvet skall dock skruvas fast i bjälklaget och vi har inte fått några konstruktionsritningar från A-hus än. Detta gör att vi inte kan vara säkra på vilket håll mellanbjälklaget går.
Någon läsare här som bygger/har byggt Vendelsö och hjälpa oss med denna fråga?
Man bör förresten inte släppa in barnfamiljer på byggmarknader, för vår del hamnade besöket på denna nivån:
Utdrag från diskussionen på Woodys idag:
J: Detta är tråkigt, jag vill gå.
A: Vi måste titta på golvet, kan vi inte titta på golvet kan du inte få något golv till ditt rum:
J: Men jag måste ju ha golv, annars så trillar jag ju ner!
A: Just det...så lugna dig nu så mamma och jag kan titta. ;-)
Vi gillade golvet (granplank, vitlutad och borstad) och funderar nu på att köpa den imorgon då priset gäller bara denna helgen.
Golvet skall dock skruvas fast i bjälklaget och vi har inte fått några konstruktionsritningar från A-hus än. Detta gör att vi inte kan vara säkra på vilket håll mellanbjälklaget går.
Någon läsare här som bygger/har byggt Vendelsö och hjälpa oss med denna fråga?
Man bör förresten inte släppa in barnfamiljer på byggmarknader, för vår del hamnade besöket på denna nivån:
Utdrag från diskussionen på Woodys idag:
J: Detta är tråkigt, jag vill gå.
A: Vi måste titta på golvet, kan vi inte titta på golvet kan du inte få något golv till ditt rum:
J: Men jag måste ju ha golv, annars så trillar jag ju ner!
A: Just det...så lugna dig nu så mamma och jag kan titta. ;-)
fredag 13 maj 2011
Byggsamrådsmöte och efterlysning av entreprenören
Nu är vårt byggsamrådsmöte bokat till den 24 maj. Det känns bra att ha ett datum spikat.
Vad jag har förstått så gäller det att ha med sig en energikalyl, byggfelsförsäkring samt kontrollplan.
Är det något mer man bör ha med sig eller förbereda? Någon som vet?
"Vår" entreprenörer har fortvarande inte hört av sig för att skriva kontrakt. Det känns inter riktigt bra,....
Vad jag har förstått så gäller det att ha med sig en energikalyl, byggfelsförsäkring samt kontrollplan.
Är det något mer man bör ha med sig eller förbereda? Någon som vet?
"Vår" entreprenörer har fortvarande inte hört av sig för att skriva kontrakt. Det känns inter riktigt bra,....
tisdag 10 maj 2011
De finaste barnrummen
Har tillbringat en del tid på nätet på sistone med att leta efter fina tapeter till barnens rum.
Hittade bilder på helt underbara barnrum på http://frokenbauer.wordpress.com/:
Inspirerad bli jag :-)
Hittade bilder på helt underbara barnrum på http://frokenbauer.wordpress.com/:
Inspirerad bli jag :-)
måndag 9 maj 2011
Första fakturan och sprucken budget
Fick vår den allra första faktura på huset. Fakturan var från kommunen och gällde avgifterna bygglovet och bygganmälan.
I vår budget (från A-hus) var den beräknade bygglovskostnaden 11 000 kr.
Vår faktura var istället på 15 200 kr, alltså 40 % högre. Inte kul alls!
De känns inte alls roligt att börja nalla på "oförutsett kontot" redan nu. Vi har ju inte ens börjat att bygga....
I vår budget (från A-hus) var den beräknade bygglovskostnaden 11 000 kr.
Vår faktura var istället på 15 200 kr, alltså 40 % högre. Inte kul alls!
De känns inte alls roligt att börja nalla på "oförutsett kontot" redan nu. Vi har ju inte ens börjat att bygga....
fredag 6 maj 2011
onsdag 4 maj 2011
Miss i planeringen och nytt leveransdatum
Vårt planerade leveransdatum för huset har varit onsdag v 27. Detta har oroat oss från start då byggsemestern börjar v28. Lyfte frågan med A-hus, men fick till svar "inga problem- entreprenören har sagt att de fixar det". Nu har dock även entreprenören kommit på att detta inte går...
Lite sent påtänkt kan jag tycka, men tack och lov har vår A-hus säljare löst situationen och fixat så vi får husleveransen en vecka tidigare.
Så otroligt skönt att detta löstes nu och vi nu har en sak mindre att oroa oss över. Hade varit lite surt att behöva titta på den tomma plattan (eller ännu värre det läckande huset) hela semestern och muttra "vad var det jag sa".
Så stort plus till A-hus denna veckan som helt enkelt löste problemet utan att vi ens behövde engagera oss.
Lite sent påtänkt kan jag tycka, men tack och lov har vår A-hus säljare löst situationen och fixat så vi får husleveransen en vecka tidigare.
Så otroligt skönt att detta löstes nu och vi nu har en sak mindre att oroa oss över. Hade varit lite surt att behöva titta på den tomma plattan (eller ännu värre det läckande huset) hela semestern och muttra "vad var det jag sa".
Så stort plus till A-hus denna veckan som helt enkelt löste problemet utan att vi ens behövde engagera oss.
tisdag 3 maj 2011
Planritningar efter våra justeringar
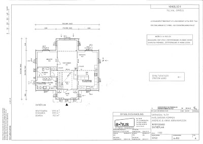
Nu har vi fått våra planritningar från A-hus. Det känns jätteroligt att se allt inritat.
Där är några småfel som skall justeras. Där är en vägg och en WC-stol som skall flyttas i det övre badrummet, köksön är för smal och garderoben i hallen skall bort men alla ändringar verkar ha kommit med.
Standardluftintag i A-hus villor är freshventiler. Jag gillar inte dessa (och är lite yrkesskadad) så A-hus ritade om intagsventilerna på vårt hus till spaltventiler efter våra önskemål (därav den extra stämpeln på ritningen).
Placeringen av spaltventilerna hårdgranskades av undertecknad och är helt klart godkända. Det viktiga tycker jag är att inte placera ventilerna ovan stora fönsterpartier och inte för nära varandra så man inte förstärker kallraset från dem.
När jag tittar på vilka ändringar och tillägg vi har gjort undrar jag ibland om vi (läs Anna) är riktigt kloka. Jag har bla bytt ut alla intagsventiler, fått specialbeställa dörrtrösklar samt byta ut vilka fönster som är öppningsbara eller inte för att få mer symmetri i fasaden....
Någonstans så har jag kanske gått förbi gränsen för noggrann och mån om detaljer och istället passerat till kontrollfreak?
Jag måste berömma vår A-hus säljare som har fått jobba hårt för att uppfylla alla mina önskemål och inte klagat en enda gång ( inte framför mig i alla fall ;-))
Prenumerera på:
Kommentarer (Atom)









